Обяви За нас Контакти
Продава 2-СТАЕН
град София, Овча купел 2
153 500 €
300 219.91 лв.

(2 103 €, 4 113.11 лв./m2)
Цената е без ДДС
Коригирана в 16:41 на 13 януари, 2026 год.
Обявата е посетена 11491 пъти.
Площ:
73 m2
Етаж:
5-ти от 8
ТEЦ:
ДА
Строителство:
Тухла, Въведен в експлоатация 2023 г.

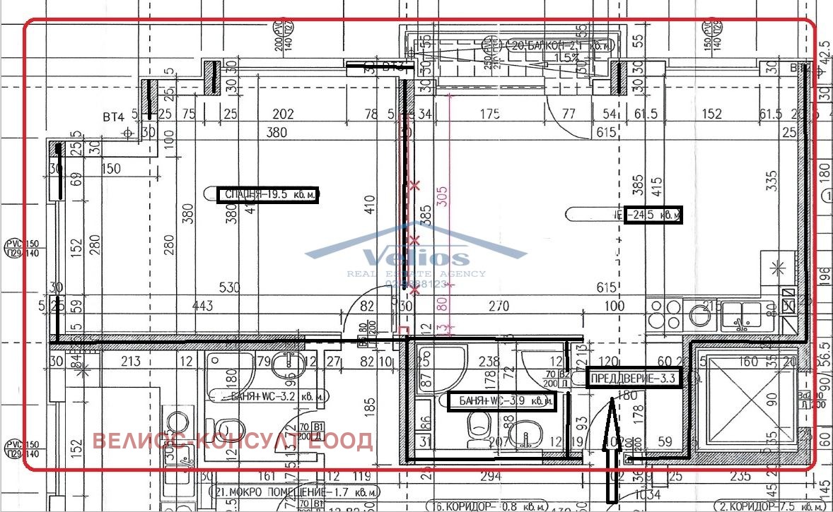
Описание на имота:


'Велиос Консулт' предлага за продажба двустаен апартамент в нова сграда с акт 16 от 2023 г в кв. Овча Купел 2 в непосредствена близост до Метростанция 'Горна баня', Статут на имота- Ателие. Разпределение - дневна с кухненски бокс(24кв.м.), спалня(19.5 кв.м.), тераса, със застроена площ на имота- 63,6 кв.м./72,69 кв.м с ид.ч., изложение - северозапад. Отопление - Тец, На шпакловка и замаска. Подземно паркомясто -25000 Е. Предлагаме и други апартаменти в сградата. За подробности 0888806447
Особености
Тухла
Асансьор
С паркинг
Контрол на достъпа
За контакт:
0888806447
Брокер:
Ивайло Киров
0888806447
Още оферти от брокера: Продава | Дава под наем | Купува | Наема
Агенция:
ВЕЛИОС-КОНСУЛТ ЕООД
0888806447; 0887703305
ВЕЛИОС-КОНСУЛТ ЕООД logo
Медал за прослужено време
В imot.bg от 2003 г.
velios.imot.bg
Адрес:
област София, гр. София, бул. 'Христо Ботев' 54
http://www.velios-imoti.com
ИЗПРАТИ ЗАПИТВАНЕ
ИЗПРАТИ ЗАПИТВАНЕТО

Продава 2-СТАЕН
град София, Овча купел 2
Обява: 1b172232604083162

153 500 €
300 219.91 лв.
(2 103 €, 4 113.11 лв./m2)

Цената е без ДДС
ЗАПАЗИ ОБЯВАТА

Местоположение: град София, Овча купел 2

Допълнителни данни за имотите в района и сравнение с други райони

Покажи

Период

и 2 месеца

* Средните цени са определени чрез медианна стойност